Chilembe Klinik
Es wird Zeit
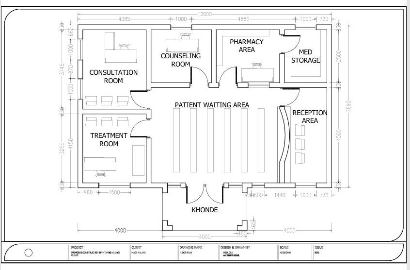
Wir gehen es an. In Chilembe bauen wir unser Technical College. Jetzt sind die Bewohner auf uns zugekommen, ob wir nicht ein dringend benötigtes Klinik-Gebäude errichten können. Es geht um folgende Versorgung:
- Impfungen von Kindern
- Schwangerschaftsvorsorge
- Under5- Vorsorge
- Grundversorgung von Verletzungen
- Ggf Überweisung ins Queens Hospital
Die Menschen müssen für kleinste Verletzungen stundenlange Wege auf sich nehmen. Die kleinen Kliniken helfen enorm bei der Erstversorgung.
Mit dem Gesundheitsministerium haben wir schon gesprochen. Sie werden einen Arzt bereit stellen und die medizinische Versorgung sicher stellen.















